How To Wire Under Cabinet Lighting Diagram Uk / How To Install Under Cabinet Lighting In Your Kitchen Diy / Hide the under cabinet lighting wires.

How To Wire Under Cabinet Lighting Diagram Uk / How To Install Under Cabinet Lighting In Your Kitchen Diy / Hide the under cabinet lighting wires.. The channel should stretch from under the switch box to right near the farthest light. 48+ how to wire under cabinet lighting diagram gif. With the progression of wiring standards over the years, there are several electrical wiring colour coding used in homes around uk. When you are choosing the lighting that is best for you, i suggest paying close attention to the required wiring for that fixture. It's a fast, easy project t.

On the bottom of each cabinet, use the drill again to make a hole for the wire for each light to come through. Puck lights are round, similar in appearance to a hockey puck. It's a fast, easy project t. The result of undercabinet lighting is a bright focused light. Fitting lights in and/or under kitchen wall units can have a dramatic effect in the kitchen and there are two ways to do this.

How To Wire A Narrowboat Part 1 Canalsonline Magazine
How To Wire A Narrowboat Part 1 Canalsonline Magazine from canalsonline.uk
The electrical cable that is used to connect to an existing power source must have the same rating and or wire gauge as the source amperage rating. Electrical wire type for under cabinet lights. Hide the under cabinet lighting wires. We show you how and what you need for your colorful kitchen lighting. There are four common styles of under cabinet lighting to choose from: Undercabinet lighting works best in the kitchen, where it can be used for task lighting. Firstly, if you are lucky enough to be designing your kitchen from scratch the wiring can be put into the wall/ceiling first. It does not need to be independently fused this is just adding mnore lights to the lighting circuit.

For example, if you wish to control the undercupboard lighting from the same point as the main kitchen lighting it would make sense to use the lighting circuit.

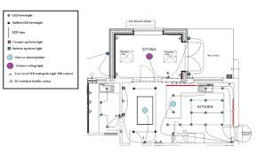
Subtle kitchen unit lighting offers a great ambiance while providing a good light to work by. Wiring diagram of single tube light installation with electronic ballast. This will allow you to run the cables to the exact position you need in order to fit the lights. It's a fast, easy project t. Modular led linear bar under cabinet lighting: 48+ how to wire under cabinet lighting diagram gif. Professional lighting expert jason walks you through the everything you need to know about the basics of under cabinet lighting. How to install low voltage outdoor lighting the garden glove. Here, you can see there is a cut in the line wire connected to lamp 3, so the bulb is switch off and the rest circuit is working. It is a simple component system of varied length linear bars that connect together and plug directly into an outlet. Most local codes allow fluorescent lights to be used as junction boxes, so you can string the wire from light to light. Another major defect of series lighting circuit is that as all lamps or bulbs are connected between line l and neutral n accordingly, if one of the light bulb gets faulty, the rest of the circuit will not work as the circuit will be open as shown in fig below. When you are choosing the lighting that is best for you, i suggest paying close attention to the required wiring for that fixture.

Another major defect of series lighting circuit is that as all lamps or bulbs are connected between line l and neutral n accordingly, if one of the light bulb gets faulty, the rest of the circuit will not work as the circuit will be open as shown in fig below. How to install ge direct wire under cabinet lights, and review of minor installation issues. Wiring diagram of single tube light installation with electronic ballast. The project below shows how to set low voltage lights into the plinth of a set of kitchen units but this method can just as easily be used in covings and cornices in and on all types of unit. Subtle kitchen unit lighting offers a great ambiance while providing a good light to work by.

How To Wire Led Lights To A Switch Conquerall Electrical Ltd
How To Wire Led Lights To A Switch Conquerall Electrical Ltd from conquerallelectrical.ca
Hide the under cabinet lighting wires. Thus you have created an (ugly great) power block which can then be wired into a lighting circuit without danger of anyone pulling out the plug and using it for the vaccum cleaner. A wiring diagram usually gives guidance just about the relative incline and. Lutron dimmer, for dimmable led lights. There are four common styles of under cabinet lighting to choose from: It's a fast, easy project t. Undercabinet lighting works best in the kitchen, where it can be used for task lighting. Wire outdoor low voltage lighting diagram led light wiring ac px running cable to fixtures landscape transformer electrical diy deck plans install a architect how lights in series system layout fx luminaire drop and size transverter backyard badass with burning installing the easiest way wired doorbell works hometips connect your.

A wiring diagram usually gives guidance just about the relative incline and.

It's a fast, easy project t. How to install low voltage outdoor lighting the garden glove. Lutron dimmer, for dimmable led lights. The earth wire which is located between the live and neutral wire provides a safe escape route for leakage current from a circuit as a result of electrical fault or poor connection. Learn how to easily add beautiful task lighting to your kitchen. Some snap into place and others are screwed in. 48+ how to wire under cabinet lighting diagram gif. Installing under cabinet lighting project overview. Professional lighting expert jason walks you through the everything you need to know about the basics of under cabinet lighting. Install the under cabinet light fixtures. Firstly, if you are lucky enough to be designing your kitchen from scratch the wiring can be put into the wall/ceiling first. Run cable from the switch box to the hole for the first light, then from the first to the second light and so on. Puck lights are round, similar in appearance to a hockey puck.

Electrical wire type for under cabinet lights. If the existing cable is 12/2 then a 12/2 should be installed to maintain the integrity of the circuit. There are a number of lighting fixtures and bulb types to choose from. Run cable from the switch box to the hole for the first light, then from the first to the second light and so on. Choosing the appropriate gauge wire for your under cabinet lighting project.

How To Install Under Cabinet Lighting In Your Kitchen Diy
How To Install Under Cabinet Lighting In Your Kitchen Diy from www.familyhandyman.com
Subtle kitchen unit lighting offers a great ambiance while providing a good light to work by. Modular led linear bar under cabinet lighting: How to install ge direct wire under cabinet lights, and review of minor installation issues. 03 mount the housing assembly with wood screws. Most local codes allow fluorescent lights to be used as junction boxes, so you can string the wire from light to light. Puck lights are round, similar in appearance to a hockey puck. Lutron dimmer, for dimmable led lights. The basics of wiring under cabinet light fixtures.

Under cabinet lights zu spitzenpreisen.

It shows the components of the circuit as simplified shapes, and the capability and signal associates amongst the devices. Hide the under cabinet lighting wires. How you wish the lighting to be switched sometimes governs which circuit is used. Wiring diagram of single tube light installation with electronic ballast. The result of undercabinet lighting is a bright focused light. When you are choosing the lighting that is best for you, i suggest paying close attention to the required wiring for that fixture. Some snap into place and others are screwed in. Learn how to easily add beautiful task lighting to your kitchen. Some will use low voltage wires which as a thinner gauge and others will use 120 volt wire that is a thicker 14 gauge wire. We show you how and what you need for your colorful kitchen lighting. Unscrew the old light fixtures from the underside of the cabinets. Installing under cabinet lighting project overview. It is a simple component system of varied length linear bars that connect together and plug directly into an outlet.

If the existing cable is 12/2 then a 12/2 should be installed to maintain the integrity of the circuit how to wire under cabinet lighting diagram. The basics of wiring under cabinet light fixtures.

0 comments